
Leistungsphase 0 / Machbarkeitsstudien
Machbarkeitsstudien Grundschulerweiterungen Ibbenbüren
2024
Beschreibung des Projekts
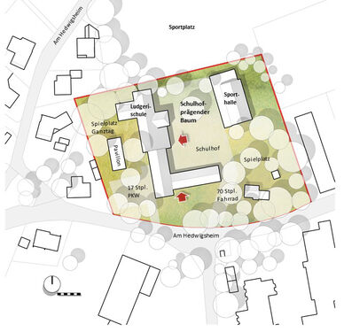
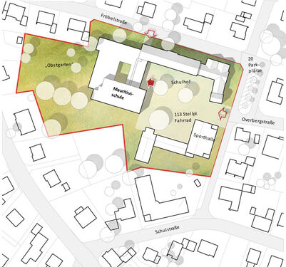
Vor dem Hintergrund des zukünftigen Rechtsanspruchs auf Ganztagsbetreuung für Grundschulkinder sowie steigender Schülerzahlen sollte die gesamte räumliche Situation an allen Grundschulen der Stadt Ibbenbüren untersucht werden. Auf Grundlage des bereits erstellten Raumprogramms sollte die Machbarkeit von Schulerweiterungen unter Berücksichtigung der Bestandsgebäude und der Grundstücksrahmenbedingungen an sieben Standorten geprüft werden. Auf dieser Grundlage wurden Vorentwurfskonzepte erstellt und die Kostenrahmen der einzelnen Schulen festgelegt.
Das Projekt wurde gemeisam mit dem Büro Arndt Architektur umgesetzt.







